家是每个人最初的记忆 也是我们最终的归宿
设计
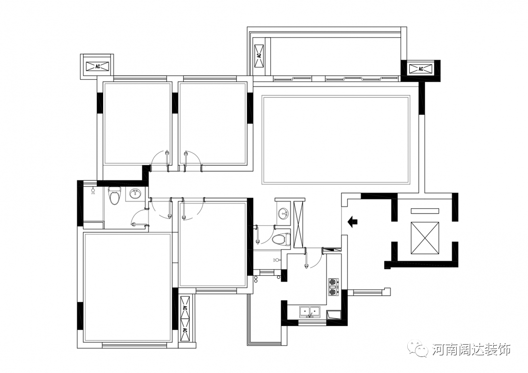
原始入户位置是一排鞋柜,现在将置鞋的功能转移到门外,在原来的位置放置装饰玄关柜。利用波纹板做弧形造型,巧妙遮挡住强弱配电箱,同时配合黑色吊饰和简约色块装饰画,打造奶茶系暖居的第一站。


入户左侧是厨房的位置,原本的推拉门改为艺术玻璃移门,保证整个公区空间的色系统一。



全屋的非成品柜皆为团队自有品牌“U然木作”定制安装。客厅的超大储物柜满足公区的收纳需求,在造型上也别具一格:三色隔板、格栅背板,与奶茶系的家相辅相成;乐高展示玻璃柜正对过道,也有端景的效果。

屋主希望家里是通透敞亮的,喜欢落地窗的开阔视野,便将原来的阳台包进客厅并封窗。阳台底部有50cm左右的上翻梁,无法实现完全的落地窗的效果。于是便在阳台做了约20cm高的地台,从视觉上缩短上翻梁的高度,让视野更加开阔。同时,高度的差异也使得地台成为一个独立区域,健身、喝茶、晒太阳、储物,也是小朋友的玩耍区。

造型各异的餐椅,让餐厅多了一份寻宝般的惊喜。三餐四季、家庭工作组成了生活的一大半,精心对待才更可能发现平淡中的惊喜。


男主人有居家工作和玩游戏的需求,加上家里有不少书籍需要收纳,所以便设计出一间书房。椅子、懒人沙发,既能正襟危坐,也可以随性放松。



卧室以温馨、宁静为主基调。木地板换为更接近原木色的,墙漆、床品及窗帘都选择低饱和度,床头柜、灯具及装饰画都是小体量的,不会产生厚重的抑感,对提升睡眠质量也有一定裨益。本套案例中,餐厅和书房间的互动通过一组钢板柜来体现:吃早餐的她,一眼就可以看见那人工作的背影。



小朋友年龄小,原来的小床完全够用,加上屋主希望儿童房的布局可以随着小朋友的成长而灵活调整,所以并未重新买床。







